61 - 1833 Coast Meridian Road, Port Coquitlam

61 - 1833 Coast Meridian Road

Port Coquitlam

0

Warehouse for lease in Port Coquitlam!

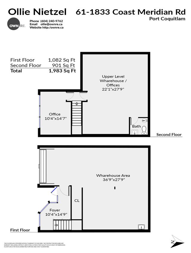
FOR LEASE! Prime Location and fully renovated with A/C! 1,983 Sq.Ft Warehouse for lease in Port Coquitlam. Two levels featuring 1,082 Sq.Ft. of ground floor space, 901 Sq.Ft. of office/mezzanine space and a 2 piece bathroom. Comes with 3 parking spaces. See photos for floor plan. Close proximity to the Mary Hill Bypass, Freeway and Pitt River Bridge. Available December 1, 2024.

More Details

  • MLS®: C8064282
  • Type: Condo
  • Building: 1833 Coast Meridian Road, Port Coquitlam
Address on Google Mapsmap marker icon
Map View
Street View

More About Port Coquitlam

lattitude: 49.2497936

longitude: -122.7575396


Share Location

Contact us today to view other properties

604.240.9762












Similar Listings